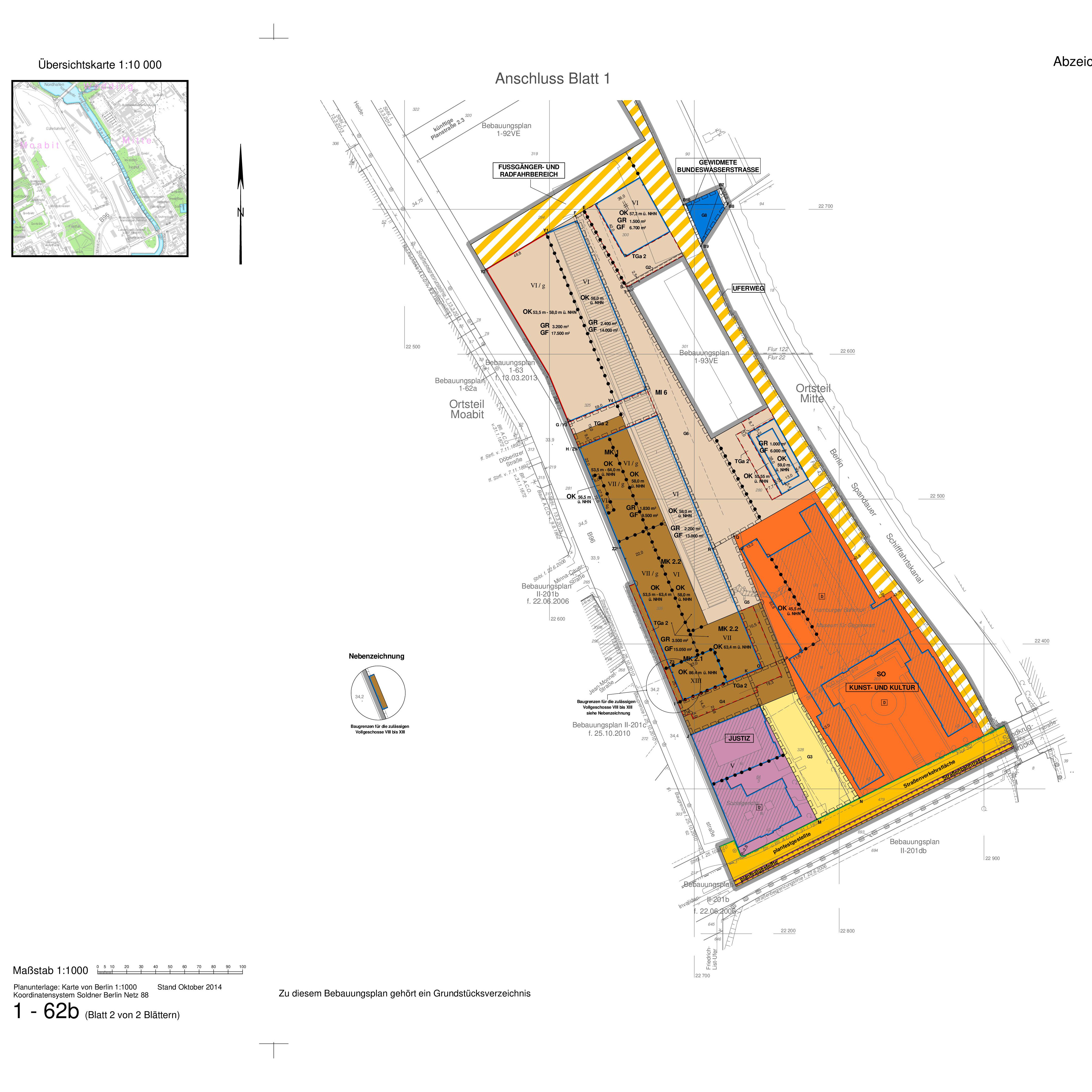
Sechs Bebauungspläne, davon zwei vorhabenbezogen, und ein B-Plan planfeststellungsersetzend für den Bereich Heidestraße in Berlin-Mitte. Das städtebauliche Projekt "Europacity" umfasst insgesamt rund 3.000 Wohneinheiten und insgesamt 360.000 m² Büro-, Einzelhandels- und Gastronomieflächen nördlich des Berliner Hauptbahnhofs.
Die Zuständigkeit für die Planungsverfahren liegt bei der Senatsverwaltung für Stadtentwicklung, Bauen und Wohnen.
Im Stadtzentrum, nördlich des Berliner Hauptbahnhofs, nimmt auf einer Fläche von rund 40 Hektar das Quartier Europacity seine Gestalt an, das einst als „Niemandsland“ galt und von Güterbahnhöfen und der Berliner Mauer geprägt war. Dort werden nun gut 3.000 Wohneinheiten entstehen und ca. 10.000 Arbeitsplätze geschaffen.
Die planungsrechtliche Grundlage dafür bilden sechs Bebauungspläne, die von Spath+Nagel - heute regioteam - bearbeitet wurden, Plangeber war die Berliner Senatsverwaltung für Stadtentwicklung, Bauen und Wohnen. Die B-Pläne basieren auf dem 2009 vom Senat genehmigten Masterplan. Gemäß dieser Anforderung sollen die sechs Teilbereiche des Quartiers eine differenzierte und nachhaltige urbane Mischung von Arbeiten und Wohnen bilden. Ergänzt werden soll das Bild durch Einzelhandel und Gastronomie in den Erdgeschosszonen sowie Kunst und Kultur auf dem neuen Kunst-Campus. Attraktive Freiräume in Form von Parks, Grünflächen, einem Stadtplatz und einer Uferpromenade entlang des Berlin-Spandauer Schifffahrtskanals durchqueren und begleiten zudem das Quartier.
Die hier zusammengetragenen Eindrücke aus der neuen Europacity sollen veranschaulichen, wie aus der Planung inzwischen urbane Realität geworden ist.
Weitere Informationen zu diesem wichtigen städtebaulichen Projekt in der Mitte Berlins erhalten Sie auf den Seiten der Senatsverwaltung für Stadtentwicklung, Bauen und Wohnen über den folgenden Link:
Die Europacity wird durch die Uferpromenade entlang des Berlin-Spandauer Schifffahrtskanals als "grünes Rückgrat" unterstützt. Ansprechende Fußgängerverbindungen zur Heidestraße werden über den Döberitzer Grünzug, den Stadtplatz sowie kleine Pocketparks geschaffen. Die Promenade verbindet dabei den im Süden liegenden Kunstcampus und den im Norden geplanten Nordhafenpark. Die Promenade bietet somit sowohl Aufenthalts- als auch Bewegungsmöglichkeiten.
In der Europacity soll aus der Mischung von Wohnen und Arbeiten Urbanität entstehen. Für die unterschiedlichen Nutzungen stehen eine Vielzahl von Gebäudestrukturen und –typologien, die sich nebeneinander stehend bereichern, zur Verfügung. Trotz der Nutzungsmischung und Öffentlichkeit besitzen die Wohngebiete grüne Höfe mit privatem Charakter.
Der neue Kunstcampus dient als das Bindeglied der Europacity, er verbindet die nördlich gelegenen Wohngebiete mit Gewerbe und Kultur im Süden. Dabei werden nicht nur die Ausstellungsflächen des Hamburger Bahnhofs und die Rieckhallen bespielt, sondern teilweise auch die Erdgeschossbereiche der umliegenden Wohn- und Gewerbegebäude.
letzte Änderung: 29.01.2026





