Der Bebauungsplan „Zwieseler Straße Nord“ sieht die Entwicklung von 300 Wohneinheiten im Bezirk Lichtenberg von Berlin, unmittelbar südlich des Tierparks, vor. Dabei müssen zahlreiche Bindungen, die sich aus Infrastrukturanlagen und -planungen ergeben, berücksichtigt werden.
Fachliche Inhalte: Ermöglichung von rund 300 Wohneinheiten sowie einer naturnahen Parkanlage auf ehemals gewerblich bzw. für Bahnanlagen genutzten Flächen. Lärmproblematik durch Bahntrassen und einen geplanten Straßenneubau.
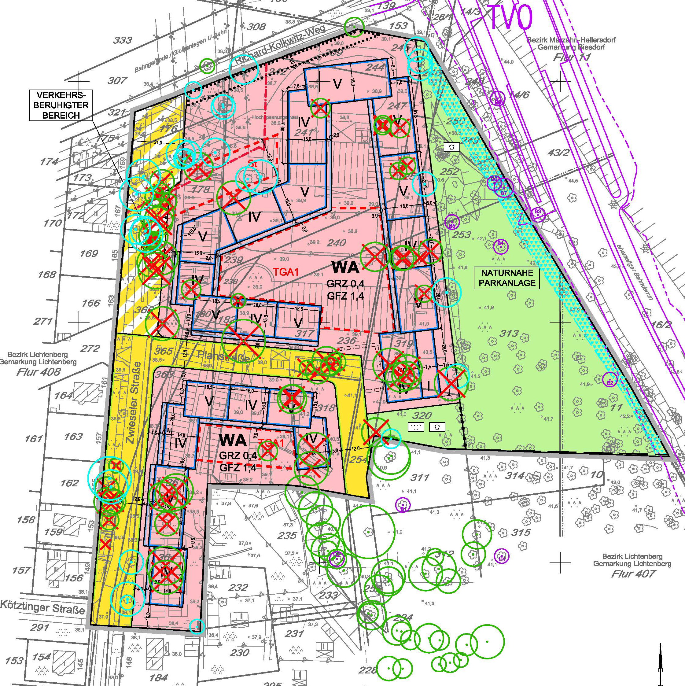
Der Standort des Wohnungsbauvorhabens „Zwieseler Straße“ überplant eine bestehende, gering genutzte Gewerbefläche, sowie ehemalige Bahnflächen. In dem Bebauungsplanverfahren waren vor allem die Bindungen zu berücksichtigen, die sich aus der bestehenden U-Bahn-Strecke im Norden, der Hochspannungsfreileitung an der nordwestlichen Spitze des Plangebiets, der Straßenplanung zur künftigen Tangentialen Verbindung Ost (TVO) und den bestehenden Eisenbahnlinien ergeben. Insbesondere bedeutete das, Abstand zur Hochspannungsfreileitung zu halten und Festsetzungen zum Lärmschutz zu treffen. Diese Maßnahmen erlauben es allerdings, Wohnraum in erheblichem Umfang zu schaffen, welcher die Lage unmittelbar am künftigen Kreuzungsbahnhof der U-Bahnlinie 5 und der S-Bahn auf dem Eisenbahn-Außenring nutzt. Weiter verbessert die Einrichtung einer naturnahen Parkanlage die Grünversorgung in dem Gebiet deutlich und gleicht den zusätzlichen Bedarf, welcher durch das Neubauvorhaben entsteht, aus.
letzte Änderung: 29.01.2026
