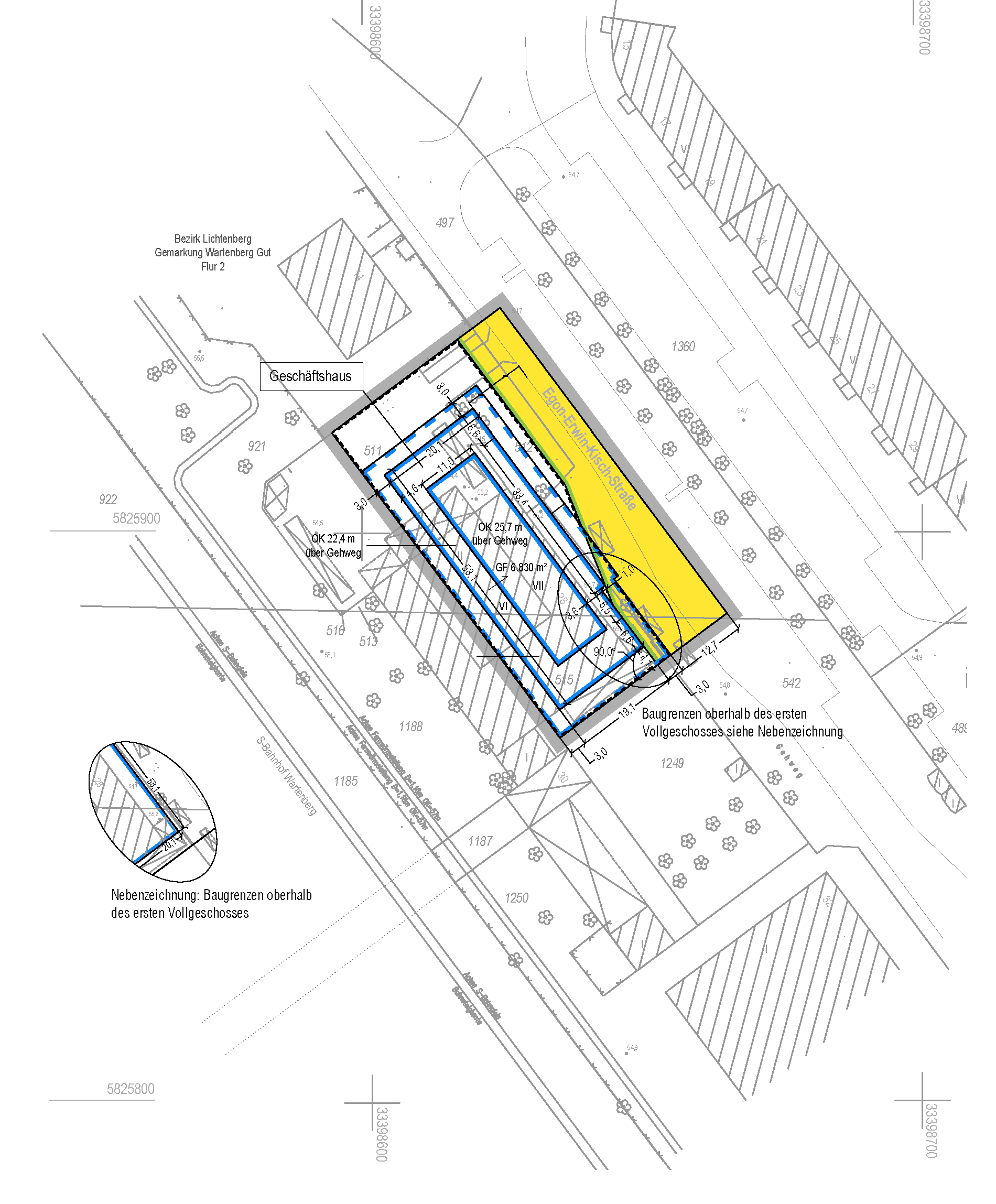
Erarbeitung eines vorhabenbezogenen Bebauungsplans für ein Vorhaben am S-Bahnhof Wartenberg, welches Büros, Arztpraxen, ein Fitnesscenter sowie zwei betreute Senioren-WGs unterbringen soll. Die Verortung von nahversorgungsrelevantem Einzelhandel und Gastronomie im Erdgeschoss die Funktion des Bahnhofsvorplatzes als Versorgungsstandort für die Großsiedlung Wartenberg stärken, den Platz gestalterisch aufwerten und für zusätzliche Lebensqualität in der Großsiedlung sorgen. DIe vorhabenbezogene Planung muss die beiden gegensätzlichen Straßenausbauplanungen gleichermaßen berücksichtigen. Aufgrund der Restriktionen überschneiden sich das Vorhabengebiet und das öffentliche Straßenland, begleitend zum Bebauungsplan werden daher Grundstücksan- und -verkäufe vorgenommen und für die künftige Straße eine Sondernutzungsvereinbarung getroffen. Die rechnerisch hohe Grundstücksauslastung und die sehr begrenzten Möglichkeiten für naturschutzfachliche Maßnahmen im Plangebiet führen zu einer komplexen Abwägung für das kleine Vorhaben.
letzte Änderung: 17.03.2026
